Aller à :

  • Aller à la recherche
  • Aller au menu principal
  • Aller au contenu
0
  • Accueil
  • Qui sommes-nous ?
    • Entreprise
    • Dirigeants
    • Équipe
  • Notre raison d’être
  • Nos métiers
    • Vente
    • Location
    • Gestion
    • Syndic
  • Nos partenaires
    • Siab immo
    • Cabinet Thinot
  • Actualités
    • Emploi
    • Blog
  • Contact
    • Estimation vente
    • Demande de gestion
    • Demande de proposition de syndic
0
VotreRecherche
Dans un rayon de
Budget
entre et €
Min €
Max €
  1. Agence immobilière à Carnoux en Provence
  2. Vente
  3. Bouches du rhone
  4. Carnoux en provence
  5. Villa
  6. T4
  7. Villa a carnoux en provence emplacement ideal travaux a prevoir

Villa à Carnoux-en-Provence – Emplacement idéal, travaux à prévoir Carnoux-en-Provence (13470)

526 000 €
Réf : 3080
Sous-compromis
Exclusif
Prix en baisse

Présentation

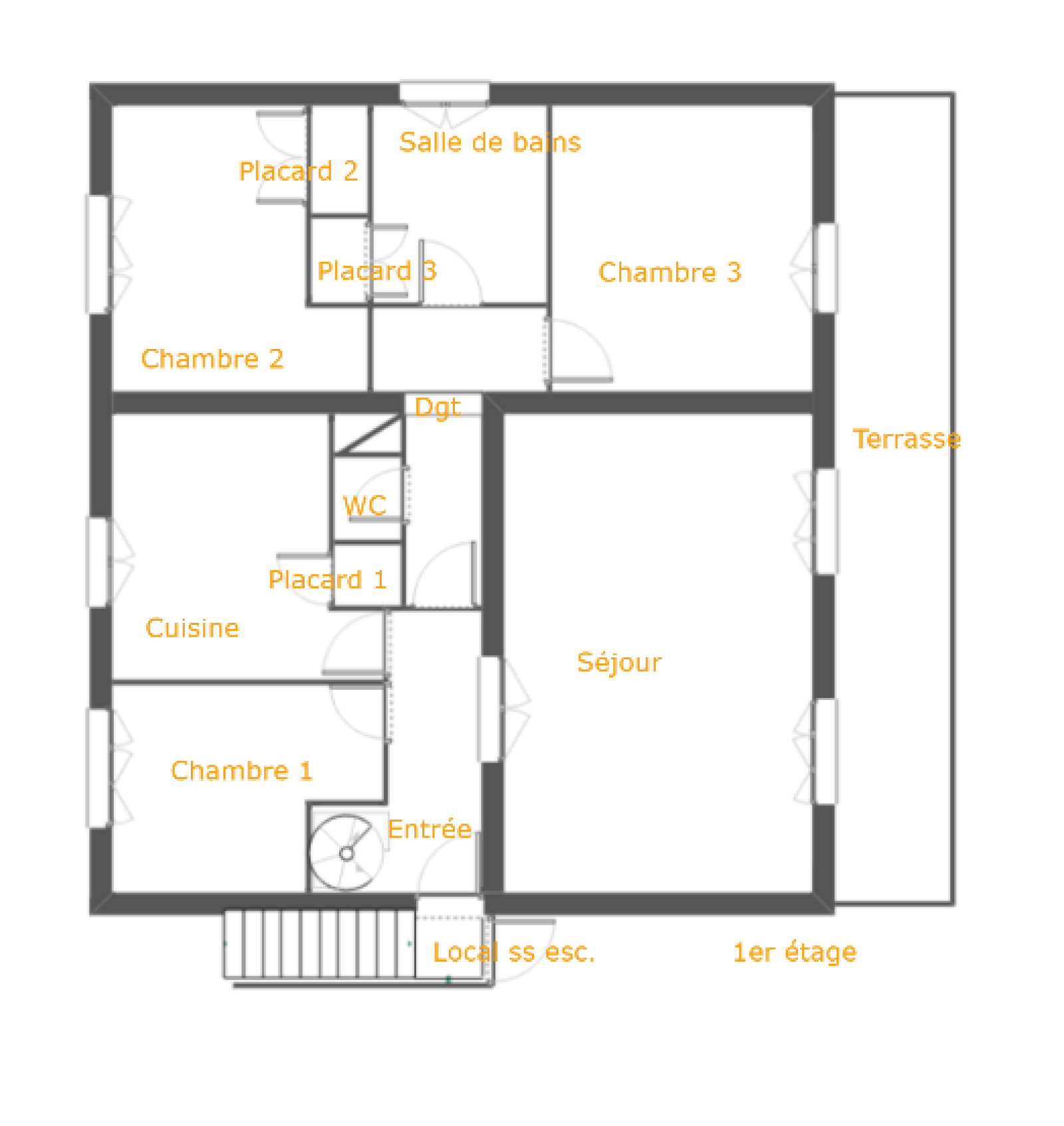
Située à Carnoux-en-Provence, cette belle villa offre un cadre de vie paisible et agréable sur une parcelle de 920 m².

Au rez-de-chaussée, une entrée mène à un séjour lumineux ouvrant sur une terrasse. La cuisine, accompagnée de son arrière-cuisine, trois chambres, une salle de bain et un WC indépendant complètent cet espace de vie.

Au rez-de-jardin, un grand sous-sol avec atelier ainsi qu’un garage permettent de nombreux aménagements.

Située dans un quartier recherché, cette villa bénéficie d’un emplacement privilégié à proximité des commodités et des axes principaux. Des travaux sont à prévoir pour en exploiter tout le potentiel. Une opportunité à saisir. Contactez-nous dès maintenant pour une visite.

Le bien en vidéo

SpotVideo

Les infos
essentielles

Caractérisque Valeurs
Code postal 13470
Surface habitable (m²) 109 m²
surface terrain 920 m²
Nombre de chambre(s) 3
Nombre de pièces 4
Nombre de niveaux 1

Les + du bien

Détails +

Caractérisque Valeurs
Nb de salle de bains 1
Mode de chauffage Electrique
Type de chauffage Radiateur
Format de chauffage Individuel
Nombre de garage 1
Cave OUI
Surface cave (m²) 9
Année de construction 1976

Financier

Caractérisque Valeurs
Prix de vente 526 000 €
Les honoraires d'agence seront intégralement à la charge du vendeur  
Taxe foncière annuelle 1 558 €

DPE

DPE GES

Copropriété

Caractérisque Valeurs
Copropriété NON

* champs obligatoires

Les informations recueillies sur ce formulaire sont enregistrées dans un fichier informatisé par La Boite Immo agissant comme Sous-traitant du traitement pour la gestion de la clientèle/prospects de l'Agence / du Réseau qui reste Responsable du Traitement de vos Données personnelles.
La base légale du traitement repose sur l’intérêt légitime de l'Agence / du Réseau.
Elles sont conservées jusqu'à demande de suppression et sont destinées à l'Agence / au Réseau.
Conformément à la loi « informatique et libertés », vous pouvez exercer votre droit d'accès aux données vous concernant et les faire rectifier en contactant l'Agence / le Réseau.
Si vous estimez, après avoir contacté l'Agence / le Réseau, que vos droits « Informatique et Libertés » ne sont pas respectés, vous pouvez adresser une réclamation à la CNIL.
Nous vous informons de l’existence de la liste d'opposition au démarchage téléphonique « Bloctel », sur laquelle vous pouvez vous inscrire ici : https://www.bloctel.gouv.fr 
Dans le cadre de la protection des Données personnelles, nous vous invitons à ne pas inscrire de Données sensibles dans le champ de saisie libre
Ce site est protégé par reCAPTCHA, les Politiques de Confidentialité et les Conditions d'Utilisation de Google s'appliquent.

Nos outils
Imprimer Imprimer
Partager le bien
Calculatrice financière

* Champ obligatoire

Partager l'annonce

* champs obligatoires

Les informations recueillies sur ce formulaire sont enregistrées dans un fichier informatisé par La Boite Immo agissant comme Sous-traitant du traitement pour la gestion de la clientèle/prospects de l'Agence / du Réseau qui reste Responsable du Traitement de vos Données personnelles.
La base légale du traitement repose sur l’intérêt légitime de l'Agence / du Réseau.
Elles sont conservées jusqu'à demande de suppression et sont destinées à l'Agence / au Réseau.
Conformément à la loi « informatique et libertés », vous pouvez exercer votre droit d'accès aux données vous concernant et les faire rectifier en contactant l'Agence / le Réseau.
Si vous estimez, après avoir contacté l'Agence / le Réseau, que vos droits « Informatique et Libertés » ne sont pas respectés, vous pouvez adresser une réclamation à la CNIL.
Nous vous informons de l’existence de la liste d'opposition au démarchage téléphonique « Bloctel », sur laquelle vous pouvez vous inscrire ici : https://www.bloctel.gouv.fr 
Dans le cadre de la protection des Données personnelles, nous vous invitons à ne pas inscrire de Données sensibles dans le champ de saisie libre
Ce site est protégé par reCAPTCHA, les Politiques de Confidentialité et les Conditions d'Utilisation de Google s'appliquent.

Partager avec vos proches

Facebook Facebook
Messenger Messenger
Twitter Twitter
WhatsApp WhatsApp
LinkedIn LinkedIn
Copier le lien Copier le lien
Détail des diagnostics énergétiques
DPE GES
DPE en cours
Autres biens

Ces biens peuvent aussi vous intéresser

Maison

Villa de plain pied entièrement rénovée à Carnoux-en-Provence

Carnoux-en-Provence (13470)
Sous-compromis
Voir le bien
Se connecter
Espace transactions Espace copropriétaires Espace clients gérés Espace locataires
Page d'accueil
Adhérents

© 2025 | Tous droits réservés | Traduction powered by Google |

  • Nos honoraires
  • Plan du site
  • Mentions légales
  • Admin
  • Partenaires
  • Politique RGPD

Comme beaucoup, notre site utilise les cookies

On aimerait vous accompagner pendant votre visite. En poursuivant, vous acceptez l'utilisation des cookies par ce site, afin de vous proposer des contenus adaptés et réaliser des statistiques !

Paramétrer

Cookies fonctionnelsCes cookies sont indispensables à la navigation sur le site, pour vous garantir un fonctionnement optimal. Ils ne peuvent donc pas être désactivés.

Statistiques de visitesPour améliorer votre expérience, on a besoin de savoir ce qui vous intéresse !
Les données récoltées sont anonymisées.

?

Google Analytics

En savoir plus